快捷导航
联系方式

电话:0577-62793938
邮箱:113019163@qq.com
地址:浙江省乐清经济开发区
祝捷电气一叩起智慧、财富与荣耀之门
LW34-40kv六氟化硫断路器
发布:2021-06-02 09:53:48 阅读:(502)
1.产品概述:
LW34-40.5型户外高压六氟化硫路器是三相交流50赫兹的户外高压电气设备;适用于40.5kV输配电系统的控制和保护;也可用于联络断路器及开合电容器组的场合;并可内附电流互感器供测量与保护用。LW34-40.5型断路器配用CT14型弹簧操动机构。断路器符合国家标准GB1984-1989《交流高压断路器》和国际电工委员会标准IEC60056:1987《高压交流断路器》的要求。断路器的主要特点:开断性能优良,采用压气式灭弧室,燃弧时间短,电寿命长,在额定电压下连续开断25千安20次不检修,不更换六氟化硫气体;绝缘可靠,气压在零表压时可耐受40.5KV10分钟;机械可靠性高,合闸能力强,能频繁操作;开合电容器组电流400安无重燃;切空长线25、50公里无重燃;结构简单、体积小,不检修周期长。40.5KV-126KV六氟化硫断路器,佳吉电气专业生产。
2.使用环境条件:
海拔高度:不超过2500;米;
高原型4000米;
环境温度:-30℃—+40℃(特殊要求-40℃—+40℃);
相对湿度:日平均不大于95 %,月平均不大于90 %(25℃);
风速:不大于35米 / 秒;
污秽等级为III级;
瓷套爬距为1050mm(1320mm)(公称爬电比距不低于25 mm / kV)。
日照:0.1w/cm2;
覆冰:10mm(MAX)
地震条件:垂直加速度0.3g;
水平加速度0.15g(max)没有易燃物质、爆炸危险、化学腐蚀及剧烈振动的场合。
高原型4000米;
环境温度:-30℃—+40℃(特殊要求-40℃—+40℃);
相对湿度:日平均不大于95 %,月平均不大于90 %(25℃);
风速:不大于35米 / 秒;
污秽等级为III级;
瓷套爬距为1050mm(1320mm)(公称爬电比距不低于25 mm / kV)。
日照:0.1w/cm2;
覆冰:10mm(MAX)
地震条件:垂直加速度0.3g;
水平加速度0.15g(max)没有易燃物质、爆炸危险、化学腐蚀及剧烈振动的场合。
3.主要技术参数:
序号 | 名 称 | 单 位 | 数 据 | ||||
1 | 额定电压 | kV | 40.5 | ||||
2 | 最高电压 | kV | 40.5 | ||||
3 | 额定绝 缘水平 | 雷电冲击耐压(全波峰值) | kV | 200*/215(断口)注:标准化185 kV | |||
工频耐压(1分钟) | kV | 95/118(断口) | |||||
4 | 额定电流 | A | 1600/2000 | 1600/2000/2500/3150 | |||
5 | 机械寿命 | 次 | 5000 | ||||
6 | 六氟化硫气体额定压力(20℃时表压) | MPa | 0.40 | 0.50 | |||
7 | 闭锁压力(20℃时表压) | MPa | 0.3 | 0.40 | |||
8 | 最抵使用环境温度 | ℃ | -40 | -30 | |||
9 | 额定短路开断电流 | kV | 20 | 25 | 25 | 31.5 | |
10 | 额定短路关合电流(峰值) | kV | 50 | 63 | 63 | 80 | |
11 | 额定短时耐受电流(热稳定电流) | kV | 20 | 25 | 25 | 31.5 | |
12 | 额定峰值耐受电流(动稳定电流) | kV | 50 | 63 | 63 | 80 | |
13 | 额定失步开断电流 | kV | 5 | 6.3 | 6.3 | 8 | |
14 | 额定短路开断电流下的累计开断次数 | 次 | 20 | ||||
15 | 额定短路持续时间 | S | 4 | ||||
16 | 合闸时间(额定操作电压下) | S | ≤0.1 | ||||
17 | 分闸时间(额定操作电压下) | S | ≤0.06 | ||||
18 | 额定操作顺序 | 分-03s—合分 -180s—合分 | |||||
19 | 额定开合单个电容器组电流 | A | 400 | ||||
20 | 年漏气率 | % / 年 | ≤1 | ||||
21 | 六氟化硫气体水份含量(20℃时) | uL/L | ≤150 | ||||
22 | 配CT14型弹簧操动机构的额定操作电压 | AC/DC:380/220V/110V | |||||
合闸线圈、分闸线圈电压 | V | 交流:220 380 直流:48 110 220 | |||||
储能电机电压 | V | 交流:220 直流:220/110 | |||||
23 | 六氟化硫气体重量 | Kg | 5 | ||||
24 | 断路器(包括操动机构)重量 | kg | 1000 | ||||
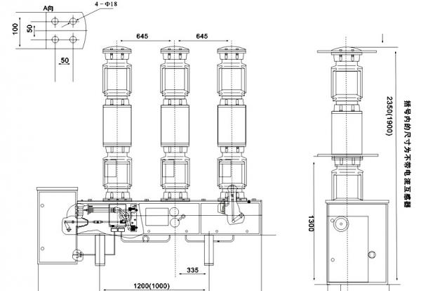
4.产品外形尺寸图:
